Decoding the Code
Your Building Code Questions Answered
Carl A. Nelson & Company offers expertise in code study and analysis for clients, both current and prospective. We highlight that expertise for readers in our newsletter, wibi. This page features a collection of Decoding the Code articles from the newsletter, written by our experienced architects and engineers.
Decoding the Code answers code questions received from clients or that have emerged on projects. Simple code questions may be submitted for possible inclusion in a future article. Complex code review services also are available to clients as part of or independent from larger projects.
To share your question, call 319-754-8415, or use the contact form to reach licensed architect Ellen McCulley. For more about our code review, Building Information Modeling and other design-related services, visit Nelson Design, Inc.
Contact us today!
Our code review experts serve clients with Fairness and Honesty, Quality Workmanship and Service Second to None, ensuring requirements are met while avoiding unnecessary and costly over-application of regulations. Fill out the contact form or call 319-754-8415 to connect with Nelson Design, Inc.

Allowed industrial ladder use varies by function
International Building Code only allows ladders to be used in locations that are unoccupied and do not require a means of egress.

Accessibility updates in hospital remodeling
Alteration levels dictate the degree to which modifications for accessibility must be made during renovation projects.

Building Code application in existing buildings
It is crucial to know before you build which codes are applicable so they may be properly applied to your project or facility.

Exterior wall assemblies must pass NFPA test
Flammable exterior cladding can cause flames to spread quickly from the outside. Decoding the Code takes a look at how rules vary by use, material.

Paint booth/kitchen code for manufacturing
Nelson Design, Inc., architect Ellen McCulley reviews International Building Code requirements for industrial paint facilities.

Egress locks in patient care areas: What's OK?
Prevent elopement from healthcare facilities while assuring fire and life safety by following building code requirements.

Damper rules for wall openings, penetrations
Part 3 of our Decoding the Code series on rules for fire and smoke walls/barriers reviews requirements for wall openings and penetrations.

Does my building need a sprinkler system? Part 2
'Total fire area' and space usage among factors determining whether fire sprinklers are required in industrial facilities.

Are fire sprinklers required? It’s complicated
Occupancy, construction type, footprint and height are key factors in sprinkler regulations for industrial facilities

Wall-opening rules for fire-rated construction
Architect Ellen McCulley reviews IBC and NFPA 101 Life Safety Code fire protection standards for doors and other openings in healthcare facilities.

Q: What are the requirements for fire smoke walls?
Comparing the requirements of International Building Code, NFPA 101 Life Safety Code for fire-rated construction in healthcare facilities

Thermal barriers for spray-foam insulation
Complex code requirements govern whether a thermal barrier is necessary in spaces with exposed spray-foam insulation in industrial or warehouse facilities.

Rules for emergency eye wash, shower stations
Nelson Design, Inc., architect Ellen McCulley, NCARB, provides an overview of requirements for placement of emergency wash stations in hazardous settings.

Proper Anchorage prevents deaths from falls
Tim Seibert, P.E., president of Carl A. Nelson & Company, reviews standards for proper Anchorages in manufacturing environments to prevent fatal falls

Use, egress, fire protection affect suite size in health facilities
Architect Ellen McCulley, AIA, LEED AP, NCARB, of Nelson Design, Inc., addresses issues affecting size limits on suite sizes in healthcare facilities.

Decoding the Code: Applying Energy Code
A review of determining the applicability of energy code based on location, construction type, by Nelson Design, Inc., Architect Ellen McCulley.

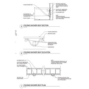
Durability, ADA are shower seat considerations
In Decoding the Code, Architect Ellen McCulley discusses code considerations for shower seat installation in industrial and institutional settings.

Decoding the Code: Know which codes apply
Code study is an important part of pre-construction. Understanding what code applies to a building project is just as important.

Decoding the Code: Code Review as Value Engineering
Nelson Design, Inc., architect Ellen McCulley, AIA, LEED AP, NCARB, discusses the cost benefits of code review during pre-construction.

Decoding the Code: Rules for Remodeling
In Decoding the Code, Nelson Design, Inc., architect Cindy Larson discusses International Building Code requirements for remodeling, and how application of the rules varies depending on the type of building, or the scale of changes being made.

Decoding the Code: Combustible Storage 102
Nelson Design, Inc., architect Ellen McCulley, AIA, LEED AP, NCARB, resumes her discussion of International Fire Code rules for storage of high-piled combustibles.

Decoding the Code: Therapy/Rec pools
Carl A. Nelson & Company's Dan Culp discusses regulatory guidelines for pools related to therapy-only versus therapy and recreational use.

Decoding the Code: High-Piled Storage
Nelson Design Services, Inc., architect Ellen McCulley, AIA, LEED AP, NCARB, offers a guide to rules for high-piled combustibles storage.

ADA Compliance in Industrial Facilities: Know the Facts
Addressing misconceptions about the application of accessibility requirements beyond commonly understood "public accommodations."

USP 800 - Are You Ready?
A discussion of USP 800 requirements for handling hazardous drugs in healthcare settings.

Hazardous Materials 103: High Hazard Occupancies
Part 3 of our Decoding the Code series on hazardous materials storage and handling.

Infection Control Risk Assessment
A review of infection control best practices during construction activities in operating hospital settings.

Life Safety Drawings
A review of requirements for life safety drawings maintained by healthcare organizations to meet CMS, state, Joint Commission standards.

Hazardous Materials 102: Control Areas
Part 2 of our Decoding the Code series on hazardous materials storage and handling.

Hazardous Materials 101
Part 1 of our Decoding the Code series on hazardous materials storage and handling.


Adding Wood Framed Structures to Metal Buildings
Proceed with caution when adding a wood framed structure to a metal building. Such modifications carry significant code compliance implications.